KRONAS STANDART 26 кВт

KRONAS STANDART 26 кВт

    0 review(s) | Add your review

    40 300,00 грн 40300.0 UAH

    40 300,00 грн

    Котел Kronas Standart - це оптимальне поєднання високих споживчих якостей і вартості. Пропонуємо котли потужністю 14, 18, 22 і 26 кВт. Моделі серії Kronas Standart комплектуються електронним блоком управління і вентилятором. В якості палива можна використовувати дрова, паливні брикети, торф і кам'яне вугілля.

    Технічні особливості котла Kronas Standart:
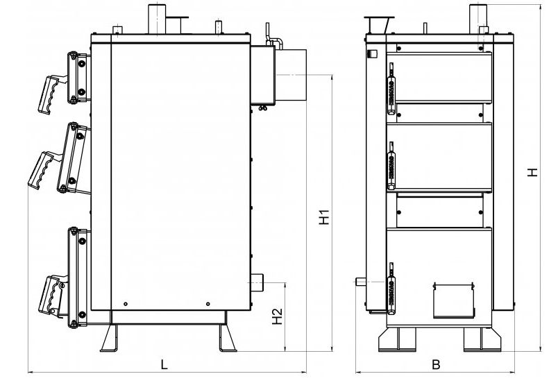
    Компактні габарити в поєднанні з великою топкою.
    Двухполочний конвективний теплообмінник.
    Тридверна система доступу до котла.
    Наявність в конструкції шибера тяги.
    Можливість установки механічного регулятора тяги.
    Вбудований електронний термометр.

    • Потужність, кВт
    • Площа обігріву, м.кв.

    Ця комбінація не існує.

    В кошик

    Технічні характеристики для KRONAS STANDART 26 кВт

    Потужність, кВт 21-30
    Площа обігріву, м.кв. 210-300